+++Modernes Gewerbeanwesen +++
Verkauf, Vermietung, Werkstatt, Büro und Wohnung,- alles vorhanden!
79106 Freiburg
Beschreibung
Die Gegend ist geprägt durch ehemalige Bahnanlagen, die seit den 2010er Jahren umgestaltet und be-baut wurden. Die Nachbarschaftsbebauung zeichnet sich durch eine Mischung aus Gewerbe, Handwerksbetriebe, Gastronomie und Dienstleistungen aus.
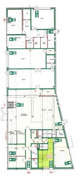
Das Gebäude liegt im rückwärtigen Teil des 4.800 m² großen Grundstücks. Die Parkplätze liegen vor dem Gebäude und sind direkt von der Straße aus zugänglich. Das teilweise 2-geschossige Gebäude verfügt über 2 Nutzungseinheiten im Erdgeschoss welches als Sockelgeschoss ausgebildet wurde. Hier findet der wesentliche Geschäftsbetrieb der Werkstatt und des Vertriebs statt.
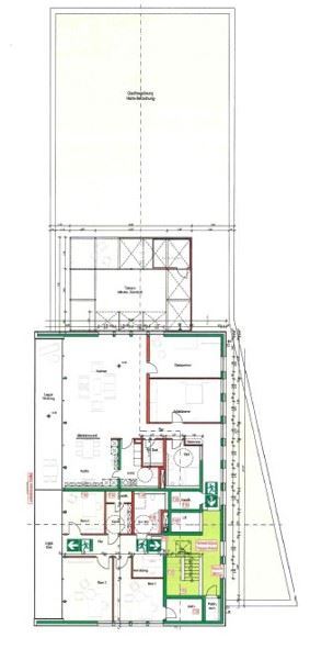
Das Erdgeschoss verfügt über ca. 4 m lichte Raumhöhe in den Werkstätten und Garagen. Verkauf, Verwaltung und Nebenräume haben durch die abgehängten Decken eine Mindestraumhöhe zwischen 2,50 m – 3,50 m. Über einem Teil des Sockelgeschosses befindet sich ein Obergeschoss als abgesetzter Baukörper mit einer Wohnung und einer Einheit mit 3 Büroräumen. Das Obergeschoss wird ergänzend zum Treppenhaus mit einem Aufzug erschlossen. Die Wohnung und die Büroeinheit verfügen über die Breite der Hauptfassade eine ca. 2 m tiefe Loggia. Die Wohnung verfügt zusätzlich noch über eine sehr große Dachterrasse.
Die Erschließungsflächen und Kfz-Parkplätze wurden mit versickerungsfähigen Pflastersteinen versehen. Zwischen den Stellplätzen gibt es in regelmäßigen Abständen kleine Grünzonen mit jungem Baumbestand.
Die Dachdeckungen sind als Flachdachdämmung mit Begrünung ausgeführt. Auf dem Dach des Obergeschosses befindet sich eine 5,035 kWp PV-Anlage. Die Glasfassaden im Erd- und Obergeschoss sind mit elektrisch betriebenen Sonnenschutzlamellen ausgestattet. Sämtliche Wände und Decken sind entweder
verputzt, gespachtelt oder geglättet und in weis gestrichen. Die Böden haben je nach Nutzungsart entweder ein geglätteter Estrich, Fliesen- oder Teppichbelag.
Weitere Angaben
Das Objekt ist voll und sehr gut vermietet und es gibt keinen Leerstand. Sämtliche Mietverträge haben eine Optierung der Mietzeitverlängerung und eine Indexklausel beinhaltet welche noch nicht bei allen Mietern gezogen wurde. Sämtliche Mieter sind „Erstmieter“ in dem Gebäude. Die aktuellen Mieteinnahmen belaufen sich auf ca. 205.530,- Euro p.a. netto.
Lage
Die Stadt Freiburg im Breisgau mit rund 245.000 Einwohnern und einer Fläche von ca. 153 km² liegt am Rande des Schwarzwaldes und ist bekannt für ihr mildes Klima, ihre historische Altstadt und ihr Engagement für Umweltschutz. Sie gilt als die südlichste Großstadt Deutschlands und ist die viertgrößte Stadt in Baden-Württemberg. Durch die Nähe zu Frankreich und der Schweiz sind Basel und Straßburg wichtige Nachbarstädte.
Der nächstgelegene internationale Flughafen ist der Euro Airport Basel-Mülhausen-Freiburg (BSL/MLH), der etwa 51 km entfernt ist. Weitere Flughäfen in der Nähe sind Straßburg (ca. 63 km), Zürich (ca. 81 km), Karlsruhe/Baden-Baden (ca. 103 km) und Stuttgart (ca. 187 km). Freiburg selbst hat einen kleinen Regionalflughafen.
Die nächstgelegenen Autobahnen sind die A5 (Basel-Frankfurt) in ca. 5 km, sowie die A81 (Singen-Stuttgart) in ca. 55 km Entfernung über das Höllental. Der Freiburger Hauptbahnhof ist ein zentraler Knotenpunkt im Regional- und Fernverkehr. Die Freiburger Verkehrs AG (VAG) und der Regio-Verkehrs-verbund Freiburg (RVF) betreiben das öffentliche Nahverkehrssystem, das Straßenbahnen und Busse umfasst.
Ausstattung
- DV-Verkabelung
- Hebebühne
- Gäste-WC
- Dusche
- Einbauküche
- Fliesenboden
- Teppichboden
- Estrichboden
- Doppelboden
- Zentralheizung
- Fußbodenheizung
- Luft-Wärmepumpe
- Ausstattung: Gehoben
